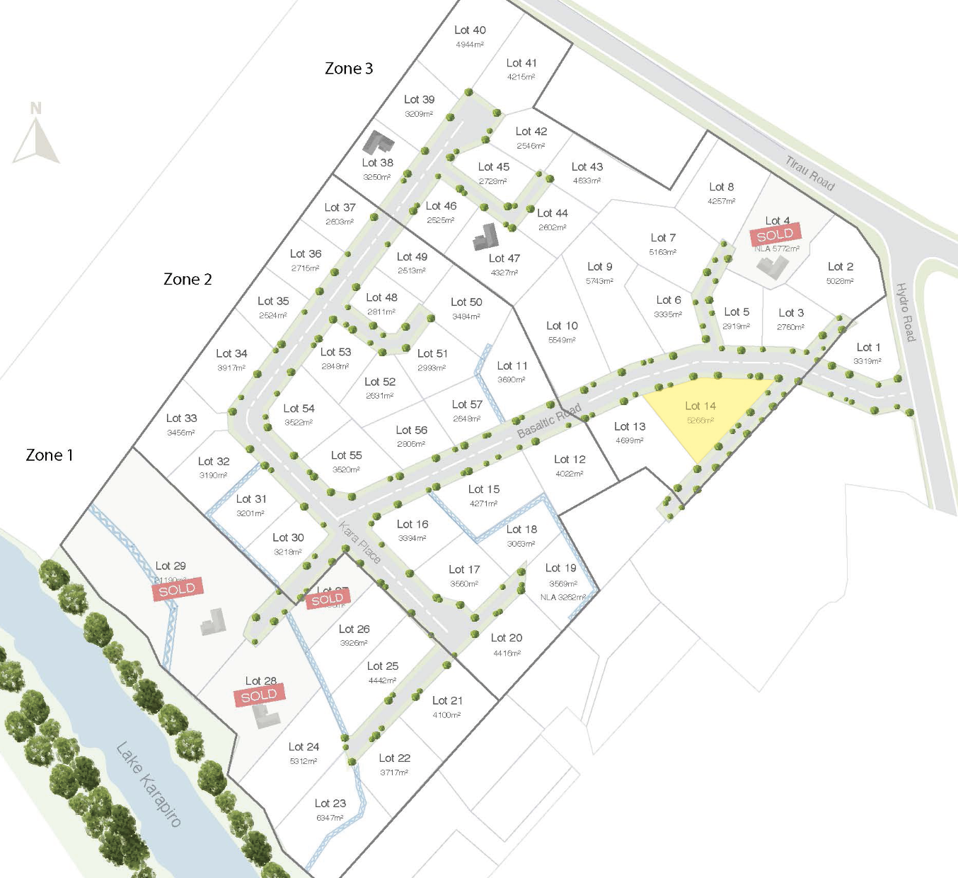
LOT: 14

Price:$750,000 - Available

Zone 3: Reference Land convents 31 (iii)

#
Land size: 5266m3

Basaltic Road
Land Size: 3319m3

Price:$650,000

view property details

Basaltic Road
Land Size: 5028m3

Price:$675,000

view property details

Basaltic Road
Land Size: 2760m3

Price:$615,000

view property details

Basaltic Road
Land Size: 5772m3

Price:NA

view property details

Basaltic Road
Land size: 2919m3

Price:$600,000

view property details

Basaltic Road
Land size: 3335m3

Price:$650,000

view property details

Basaltic Road
Land size: 5163m3

Price:$625,000

view property details

#
Land Size: 4257m3

Price:$590,000

view property details

Basaltic Road
Land size: 5743m3

Price:$700,000

view property details

Basaltic Road
Land size: 5549m3

Price:$675,000

view property details

Basaltic Road
Land size: 3690m3

Price:$750,000

view property details

Basaltic Road
Land size: 4022m3

Price:$850,000

view property details

Basaltic Road
Land size: 4699m3

Price:$750,000

view property details

#
Land size: 5266m3

Price:$750,000

view property details

Basaltic Road
Land size: 4271m3

Price:$700,000

view property details

Basaltic Road
Land size: 3394m3

Price:$650,000

view property details

Kara Place
Land size: 3554m3

Price:$500,000

view property details

Kara Place
Land size: 3063m3

Price:$675,000

view property details

#
Land size: 3569m3

Price:$675,000

view property details

Kara Place
Land size: 4389m3

Price:$620,000

view property details

Kara Place
Land size: 4100m3

Price:$775,000

view property details

Kara Place
Land size: 3717m3

Price:$750,000

view property details

Kara Place
Land size: 6347m3

Price:$1,050,000

view property details

Kara Place
Land size: 5312m3

Price:$1,000,000

view property details

Kara Place
Land size: 4442m3

Price:$775,000

view property details

Kara Place
Land size: 3926m3

Price:$775,000

view property details

Kara Place
Land Size: 2760m3

Price:NA

view property details

Kara Place
Land size: na

Price:NA

view property details

Kara Place
Land size: na

Price:NA

view property details

Kara Place
Land size: 3218m3

Price:$775,000

view property details

Kara Place
Land size: 3201m3

Price:$775,000

view property details

Kara Place
Land size: 3190m3

Price:$775,000

view property details

Kara Place
Land size: 3456m3

Price:$775,000

view property details

Kara Place
Land size: 3917m3

Price:$625,000

view property details

Kara Place
Land size: 2524m3

Price:$635,000

view property details

Kara Place
Land size: 2715m3

Price:$635,000

view property details

Kara Place
Land size: 2603m3

Price:$635,000

view property details

Kara Place
Land size: 3250m3

Price:$POA

view property details

Kara Place
Land size: 3209m3

Price:$650,000

view property details

Kara Place
Land size: 4944m3

Price:$650,000

view property details

Kara Place
Land size: 4211m3

Price:$600,000

view property details

Kara Place
Land size: 2545m3

Price:$615,000

view property details

Kara Place
Land size: 4633m3

Price:$675,000

view property details

Kara Place
Land size: 2602m3

Price:$635,000

view property details

Kara Place
Land size: 2728m3

Price:$635,000

view property details

Kara Place
Land size: 2525m3

Price:$650,000

view property details

Kara Place
Land size: 4327m3

Price:$POA

view property details

Kara Place
Land size: 2811m3

Price:$675,000

view property details

Kara Place
Land size: 2513m3

Price:$700,000

view property details

Kara Place
Land size: 3484m3

Price:$700,000

view property details

Kara Place
Land size: 2993m3

Price:$700,000

view property details

Kara Place
Land size: 2631m3

Price:$700,000

view property details

Kara Place
Land size: 2848m3

Price:$700,000

view property details

Kara Place
Land size: 3522m3

Price:$675,000

view property details

Kara Place
Land size: 3520m3

Price:$675,000

view property details

Kara Place
Land size: 2806m3

Price:$700,000

view property details

Kara Place
Land size: 2648m3

Price:$700,000

view property details